
LXG型懸掛(過軌)起重機是電廠磨煤系統為發電機組配套的專用起重機設備,其主要用途是檢修磨煤機,工作級別為A1-A3級,工作環境溫度-25℃-+40℃。不宜吊運融化金屬或有毒、易燃易爆物品。
本產品屬組合設備,它由電動葫蘆小車、電動雙梁懸掛起重機(主車)、(手)電動單(雙)梁懸掛起重機(副車)和過軌裝置組成。電氣系統是通過按鈕開關操作和控制。
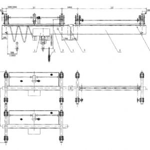
簡圖

過軌起重機外形圖
1.電動葫蘆小車 2.操作控制手柄 3.電動雙梁懸掛起重機(主車) 4.噸位牌 5.過軌裝置 6.電動單(雙)梁起重機(副車) 7.銘牌
注:括號內尺寸為20+20t用
| 項目 | t | 電動雙梁懸掛起重機(主車) | 電動雙梁懸掛起重機(副車) | 電動葫蘆 | |
| 起重量 | mm | 12.5+12.5 | 12.5 | 12.5+12.5 | |
| 跨度 | m | 3000 | 5000 | ||
| 起升高度 | m/min | 10 | 10 | 10 | |
| 起升速度 | m/mim | 3.5 | 3.5 | 3.5 | |
| 運行速度 | 20 | 20 | 20 | ||
| 工作級別 | A3 | A3 | 起升機構M3 | ||
| 運行電機 | 型號 | ZDY121-4 | ZDY121-4 | ZDY121-4 | |
| 功率 | kw | 0.8x4 | 0.8x2n(n為副車臺數)0.8x2n | 0.8x4 | |
| 起升電機 | 型號 | ZD1 51-4 | |||
| 功率 | kw | 13x2 | |||
| 一組車輪輪壓 | kN | ≤ 71.6 | ≤ 71.8 | ≤ 34 | |
| 質量 | kg | 2750 | 1130x2 | ||
| 車輪直徑 | Φ164 | ||||
| 電源 | 三相 380V 50Hz | ||||
| 項目 | t | 電動雙梁懸掛起重機(主車) | 電動雙梁懸掛起重機(副車) | 電動葫蘆 | |
| 起重量 | mm | 16+16 | 16 | 16+16 | |
| 跨度 | m | 3650 | 4000 | ||
| 起升高度 | m/min | 11 | 11 | 11 | |
| 起升速度 | m/mim | 3.5 | 3.5 | 3.5 | |
| 運行速度 | 20 | 20 | 20 | ||
| 工作級別 | A3 | A3 | 起升機構M3 | ||
| 運行電機 | 型號 | ZDY121-4 | ZDY121-4 | ZDY121-4 | |
| 功率 | kw | 0.8x4 | 0.8x2n(n為副車臺數)0.8x2n | 0.8x4 | |
| 起升電機 | 型號 | ZD1 51-4 | |||
| 功率 | kw | 13x2 | |||
| 一組車輪輪壓 | kN | ≤ 90 | ≤ 90.1 | ≤ 43.1 | |
| 質量 | kg | 3050 | 1560xn(n為副車臺數)1560xn | 1240x2 | |
| 車輪直徑 | Φ164 | ||||
| 電源 | 三相 380V 50Hz | ||||
| 項目 | t | 電動雙梁懸掛起重機(主車) | 電動雙梁懸掛起重機(副車) | 電動葫蘆 | |
| 起重量 | mm | 20+20 | 20 | 20+20 | |
| 跨度 | m | 3500 | 3650 | 1500 | |
| 起升高度 | m/min | 10 | 10 | 10 | |
| 起升速度 | m/mim | 3.3 | 3.3 | 3.3 | |
| 運行速度 | 20 | 20 | 20 | ||
| 工作級別 | A3 | A3 | 起升機構M3 | ||
| 運行電機 | 型號 | ZDY121-4 | ZDY121-4 | ZDY121-4 | |
| 功率 | kw | 0.8x8 | 0.8x2n(n為副車臺數)0.8x2n | 0.8x8 | |
| 起升電機 | 型號 | ZD1 52-4 | |||
| 功率 | kw | 18.5x2 | |||
| 一組車輪輪壓 | kN | ≤ 91.8 | ≤ 92.9 | ≤ 59.8 | |
| 質量 | kg | 5010 | 2380xn(n為副車臺數)1560xn | 3950x2 | |
| 車輪直徑 | Φ164 | ||||
| 電源 | 三相 380V 50Hz | ||||
本樣所提供重量為設計值,制造值±15%
LXG型懸掛(過軌)起重機
LXG型懸掛(過軌)起重機 2019-5-27 本文被閱讀 6520 次
| 上一條:JKMD系列落地式多繩摩擦提升機 | 下一條:地平車 |





手機:和經理18854868555 杜經理13561784486

